MEHRGENERATIONENWOHNEN IN OEREL
Bauherrengemeinschaft
Bauzeit: in Planung
Modellvorhaben des Niedersächsischen Ministeriums für Umwelt und Küstenschutz
In Nachbarschaft des bereits realisierten Mehrgenerationenhauses soll ein Wohnprojekt für jung und alt entstehen. Hier wird nachbarschaftliches Wohnen, mitten im Dorf leben und weltweites arbeiten mit dem schnellsten Internetzugang Deutschlands (Glasfasernetz) möglich.
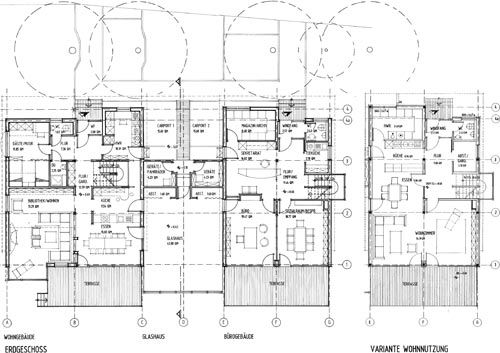
Geplant sind ca. 9 bis max. 18 Wohneinheiten von 50 bis 150 qm Wohnfläche als Doppelhäuser geplant. Die flexiblen Grundrisse für 1½ - 4 Zimmer lassen sich mit geringem Aufwand den veränderten Raumansprüchen der Bewohner im Laufe ihres Familienzyklusses anpassen.
Bauzeit: in Planung
Modellvorhaben des Niedersächsischen Ministeriums für Umwelt und Küstenschutz
In Nachbarschaft des bereits realisierten Mehrgenerationenhauses soll ein Wohnprojekt für jung und alt entstehen. Hier wird nachbarschaftliches Wohnen, mitten im Dorf leben und weltweites arbeiten mit dem schnellsten Internetzugang Deutschlands (Glasfasernetz) möglich.
Geplant sind ca. 9 bis max. 18 Wohneinheiten von 50 bis 150 qm Wohnfläche als Doppelhäuser geplant. Die flexiblen Grundrisse für 1½ - 4 Zimmer lassen sich mit geringem Aufwand den veränderten Raumansprüchen der Bewohner im Laufe ihres Familienzyklusses anpassen.









