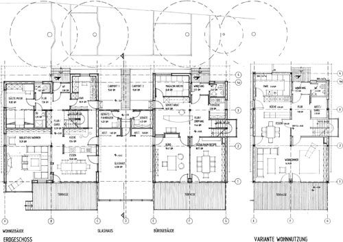
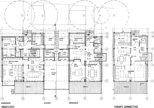
WOHN- UND GESCHÄFTSHAUS IN BREMERVÖRDE
Bauzeit: 2/1999 - 10/1999
Wohn- und Nutzfläche: 460 m²
Bruttorauminhalt: 1.650 m³
Statik: Lütjen und Paulsen
Ausgestellt beim Tag der Architektur 2001
Wohn- und Bürogebäude sind als Niedrigenergiehäuser ausgeführt. Das Baugrundstück befindet sich im Überschwemmungsbereich des benachbarten Flusslaufs der Oste, daher hebt eine Aufstelzung die Gebäude die Wohn- und Büroräume, sowie das gemeinsame Glashaus über die vorhandene Feuchtwiesenfläche. Das Bürogebäude ist für einen einfachen späteren Umbau zum Wohnhaus ausgelegt. Weitere Merkmale: Südorientierung zur passiven Solarenergiegewinnung, Brennwertthermen, mechanische Gebäudelüftungen mit Wärmerückgewinnung und Regenwassersammelanlage. Die Gestaltung der Gebäude verbindet Elemente des Neuen Bauens mit geneigten Flächen zu einer eigenständigen Formensprache.
Wohn- und Nutzfläche: 460 m²
Bruttorauminhalt: 1.650 m³
Statik: Lütjen und Paulsen
Ausgestellt beim Tag der Architektur 2001
Wohn- und Bürogebäude sind als Niedrigenergiehäuser ausgeführt. Das Baugrundstück befindet sich im Überschwemmungsbereich des benachbarten Flusslaufs der Oste, daher hebt eine Aufstelzung die Gebäude die Wohn- und Büroräume, sowie das gemeinsame Glashaus über die vorhandene Feuchtwiesenfläche. Das Bürogebäude ist für einen einfachen späteren Umbau zum Wohnhaus ausgelegt. Weitere Merkmale: Südorientierung zur passiven Solarenergiegewinnung, Brennwertthermen, mechanische Gebäudelüftungen mit Wärmerückgewinnung und Regenwassersammelanlage. Die Gestaltung der Gebäude verbindet Elemente des Neuen Bauens mit geneigten Flächen zu einer eigenständigen Formensprache.













