VOLKSBANK BEXHÖVEDE
Bauherr: Volksbank Wesermünde-Süd
Bauzeit: 2005-2006
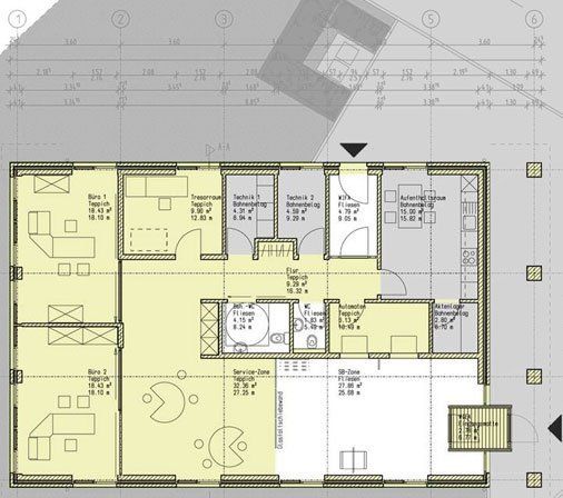
NF: 158 m²
Statik: KSF Feld und Partner
Die Geschäftsstelle steht an einer viel befahrenen Kreuzung der B 71. Sie schließt eine bislang offene Ecke im städtebaulichen Kontext, jedoch leider nur unzureichend, da die ursprüngliche Planung vom Bauherrn vor der Realisierung bezüglich Raumprogramm und Baumasse noch deutlich reduziert wurde. Die großformatigen weißen Kalksandsteine nehmen farblich Bezug zu weiß verputzten Gebäuden in der Nachbarschaft. Nachts erstrahlt der Windfang des Gebäudes in wechselnden Farben.





