KINDERTAGESSTÄTTE SÜD BREMERVÖRDE
Bauherr: Stadt Bremervörde
Bauzeit: 2014-2015
Umbauter Raum: 2.058 m³
Statik: Lütjen & Paulsen, Bremervörde
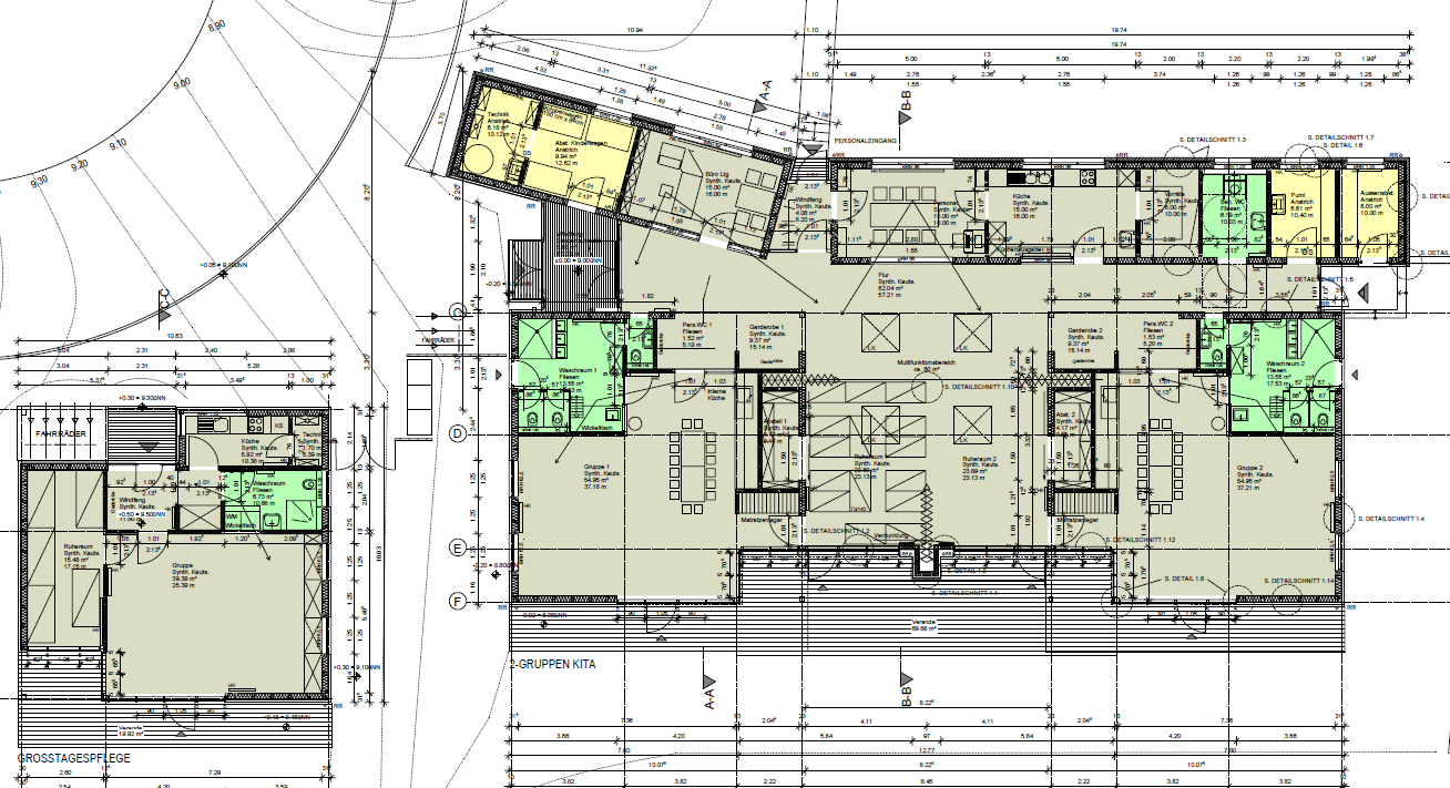
Neubau einer Kindertagesstätte mit zwei Gruppenräumen und einer Großtagespflege mit einem Gruppenraum in zwei Gebäudekörpern.
Bauzeit: 2014-2015
Umbauter Raum: 2.058 m³
Statik: Lütjen & Paulsen, Bremervörde
Neubau einer Kindertagesstätte mit zwei Gruppenräumen und einer Großtagespflege mit einem Gruppenraum in zwei Gebäudekörpern.
Das Hauptgebäude beherbergt eine Krippe mit 2 Gruppen mit bis zu 15 Kindern pro Gruppe. Das Alter der Kinder beträgt 0 – 3 Jahre. Für das Nebengebäude wird für die Großtagespflege einer Gruppe mit bis zu 10 Kindern genutzt. Das Alter der Kinder kann 0-14 Jahre betragen.
Die Haupteingangssituation wird durch die Aufweitung des Gebäudekörpers und durch das wechselnde Fassadenmaterial (Glaswand) ablesbar. Die Türelemente wurden farblich differenziert ausgeführt. Die Betonung wichtiger Funktionsbereiche (Gruppenraumzugänge, Multifunktionsfläche) erfolgt durch natürliche Belichtungspunkte in Form von Oberlichtern (Vermeidung von Blendung künstlicher Lichtquellen).


