GRUNDSCHULE FREDENBECK
Bauherr: Samtgemeinde Fredenbeck
Bauzeit:11/2001 - 10/2002
Nutzfläche: 2.992 m²
Brutttorauminhalt: 15.260 m³
Statik: Ing.Büro Wellbrock und Partner
Elektroplanung: Ing.Büro Ebel
Hzg./San.Planung: Ing.Büro Holst
Außenanlagenplanung: Winkler Landschaftsarchitekten
Wettbewerb 2000 3.Preis
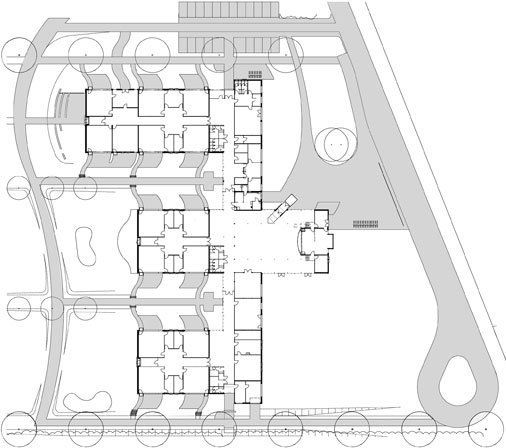
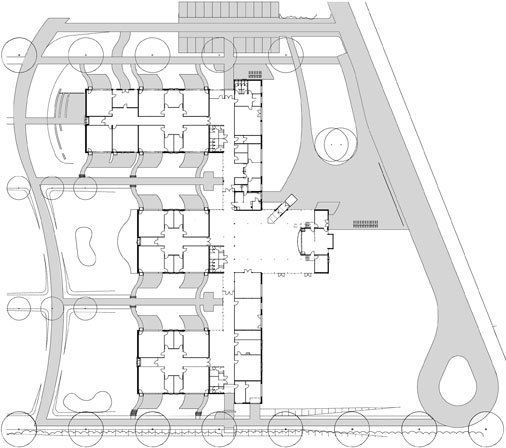
Der Grundriss ist für eine Erweiterung auf eine fünfzügige Schule angelegt, wobei zusätzlich eine Küche mit angeschlossenem Speiseraum für zukünftige Ganztagsbetreuung angegliedert werden kann. Die Klassen (1. bis 4.) sind in 3 Clustern mit je 4 Räumen um einen gemeinsamen Erschließungsbereich gruppiert. Gruppen- und Lernmittelräume ergänzen die Einheiten. Das gesamte Gebäude wurde in Holzrahmenbauweise mit geschlossen vorgefertigten Wand- und Dachelementen in kurzer Bauzeit errichtet.









