KINDERGARTEN LAMSTEDT
Bauherr: DRK Otterndorf
Bauzeit: 1994-1995
Nutzfläche: 347 m² neu
Umbauter Raum: 2.134 m³ neu
Statik: KSF Feld und Partner
Ausgestellt beim Tag der Architektur 1997
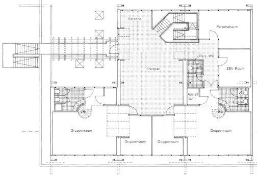
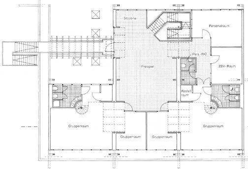
Der Zweigruppenkindergarten aus dem Jahre 1975 wurde um zwei weitere Einheiten mit angeschlossenen Kleingruppenräumen, eine große Spielfläche und Nebenräume für das Personal durch Aufstockung des eingeschossigen Flachdachgebäudes mit Hilfe einer Stahlkonstruktion erweitert. Hierdurch konnte Freifläche erhalten und das Gebäude mit geneigten Dachflächen ausgestattet werden. Die notwendige Fluchttreppe aus dem Dachgeschoss dient gleichzeitig als separater Zugang zum Freibereich.
Bauzeit: 1994-1995
Nutzfläche: 347 m² neu
Umbauter Raum: 2.134 m³ neu
Statik: KSF Feld und Partner
Ausgestellt beim Tag der Architektur 1997
Der Zweigruppenkindergarten aus dem Jahre 1975 wurde um zwei weitere Einheiten mit angeschlossenen Kleingruppenräumen, eine große Spielfläche und Nebenräume für das Personal durch Aufstockung des eingeschossigen Flachdachgebäudes mit Hilfe einer Stahlkonstruktion erweitert. Hierdurch konnte Freifläche erhalten und das Gebäude mit geneigten Dachflächen ausgestattet werden. Die notwendige Fluchttreppe aus dem Dachgeschoss dient gleichzeitig als separater Zugang zum Freibereich.




