GRUNDSCHULE STEINKIRCHEN
Bauherr: Samtgemeinde Lühe
Bauzeit: 6/1999 - 6/2000
Nutzfläche: 1.644 m²
Bruttorauminhalt: 7.338 m³
Statik: Lütjen + Paulsen
Heizungslanung: Ing.-Büro Wolff
Elt.-/San.-Planung: Ing.-Büro Ebel
Ausgestellt beim Tag der Architektur 2001
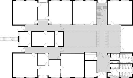
Das kompakte Gebäude mit 12 Klassen-, 3 Gruppen-, 2 Werkräumen und Nebenräumen auf 2 Ebenen fungiert als Ersatz für 6 eingeschossige Pavillons. Die erweiterte Verkehrsfläche im EG kann als Pausenhalle und Aula genutzt und über eine Glasfaltwand direkt zum Pausenhof geöffnet werden. Die Konstruktion besteht aus zweigeschossigen Stahlrahmen, Stahlbetonfertigteildecken und vorgefertigter, hoch wärmegedämmter Holzrahmenfassade mit äußerer Tonziegelverkleidung. Das Schmetterlingsdach prägt den Charakter der Schule. CTS-Solarmodule an der Südfassade dienen zugleich als feststehender Sonnenschutz. Ein Display im Windfang zeigt die Werte für solare Stromproduktion, Strom-, Regen- und Trinkwasserverbrauch, sowie den Verbrauch der Heizungsanlage.
Bauzeit: 6/1999 - 6/2000
Nutzfläche: 1.644 m²
Bruttorauminhalt: 7.338 m³
Statik: Lütjen + Paulsen
Heizungslanung: Ing.-Büro Wolff
Elt.-/San.-Planung: Ing.-Büro Ebel
Ausgestellt beim Tag der Architektur 2001
Das kompakte Gebäude mit 12 Klassen-, 3 Gruppen-, 2 Werkräumen und Nebenräumen auf 2 Ebenen fungiert als Ersatz für 6 eingeschossige Pavillons. Die erweiterte Verkehrsfläche im EG kann als Pausenhalle und Aula genutzt und über eine Glasfaltwand direkt zum Pausenhof geöffnet werden. Die Konstruktion besteht aus zweigeschossigen Stahlrahmen, Stahlbetonfertigteildecken und vorgefertigter, hoch wärmegedämmter Holzrahmenfassade mit äußerer Tonziegelverkleidung. Das Schmetterlingsdach prägt den Charakter der Schule. CTS-Solarmodule an der Südfassade dienen zugleich als feststehender Sonnenschutz. Ein Display im Windfang zeigt die Werte für solare Stromproduktion, Strom-, Regen- und Trinkwasserverbrauch, sowie den Verbrauch der Heizungsanlage.











